Ansicht

Zurück zur Übersicht

Doppelhaushälfte mit freiem Weitblick auf Wiesen u. Wälder zw. Traunstein u. Waging am See

Objektbeschreibung

**Familienfreundlich, neuwertig & eine Lage die besonders ist**

In absolut ruhiger und sonniger Ortsrandlage - mit freier Sicht auf Wiesen, Wälder und teilweise Berge - befindet sich diese neuwertige Doppelhaushälfte. Die Doppelhaushälfte ist nach Westen ausgerichtet und wurde solider Massivbauweise (36,5 cm Ziegel) mit Satteldach im Jahr 2018 erbaut. Die Wärmedämmung und das Energiekonzept (Luft-Wärmepumpe) erfüllen gehobene Ansprüche und sorgen für nachhaltige niedrige Energiekosten. Eine Be- und Entlüftungsanlage sorgt für einen optimalen Luftaustausch.

Das Erdgeschoss verfügt über einen Flur/Eingangsbereich, einen Heizungs- und Technikraum, eine Garderobe sowie über einen großzügigen Wohn-Essbereich mit offener Küche. Durch großzügige Fenster und Terrassentüren haben Sie von allen Stockwerken aus einen wunderschönen und unverbaubaren Blick nach Westen auf die umliegenden Wiesen und Wälder. Im Süden kann man die Berge gut sehen!

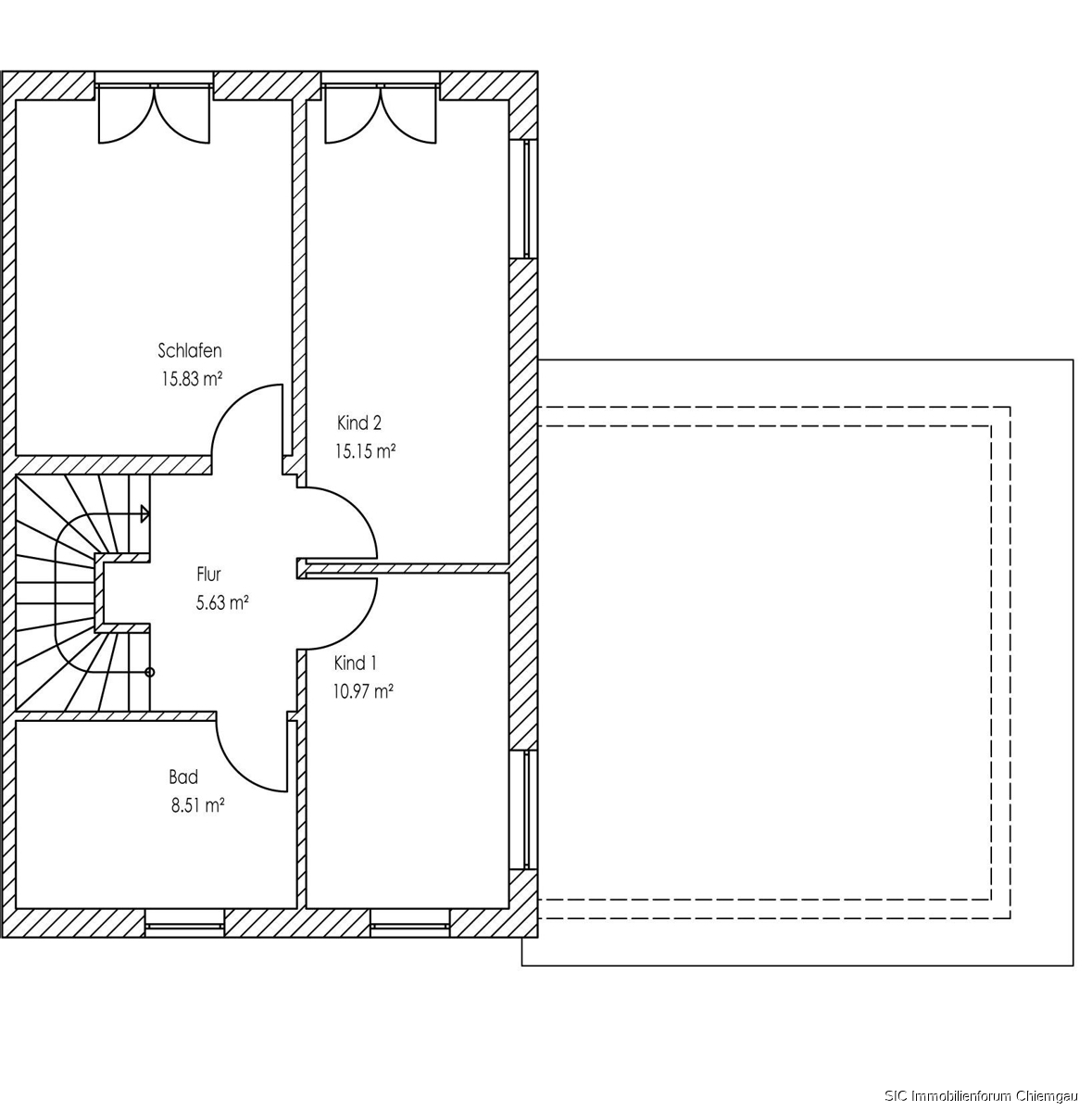
Das Obergeschoss bietet drei Schlafzimmer und ein geräumiges Bad mit Badewanne und XXL-Dusche.

Weiter oben im Dachgeschoss befindet sich ein voll ausgebauter Raum. Dieser Raum eignet sich ideal als weiteres Schlafzimmer, Büro oder Hobbyraum und wirkt durch den Sichtdachstuhl besonders gemütlich.

Die Haushälfte ist nicht unterkellert; Abstellräume sind jedoch anderweitig vorhanden. Zur Haushälfte gehört eine Garage sowie ein Kfz-Stellplatz.

Objektnummer: 10-814
Lage: 83379 Wonneberg
Wohnfläche: ca. 150 m²
Zimmer: 5,0
Baujahr: 2019
Befeuerung: Luft/Wasser Wärmepumpe
Energieausweis: Bedarfsausweis
Energiewert: 23,20 kWh/(m²*a)

Lage

Unser Verkaufsobjekt befindet sich in absolut ruhiger, sonniger und ländlicher Ortsrandlage. Freier Blick auf Wiesen, Wälder und teilweise die Berge im Süden.

St. Leonhard gehört zur Gemeinde Wonneberg und zur Verwaltungsgemeinde Waging a. See und hat ca. 1.500 Einwohner. St. Leonhard ist ca. 9 km von der Kreisstadt Traunstein, ca. 5 km von dem Ort Waging am See entfernt.
Direkt im Ort befinden sich der beliebte Kindergarten und eine Grundschule.
Sämtliche Einkaufsmöglichkeiten und weiterführende Schulen, Ärzte und andere Dinge des täglichen Bedarfs befinden sich in Waging am See oder der großen Kreisstadt Traunstein.

Ausstattung

Eckdaten und Merkmale auf einen Blick:

- Wohnfläche ca. 150 m²
- Grundstücksfläche ca. 375 m²
- Solide Massivbauweise in Ziegel 36,5 cm
- Dachgeschoss ausgebaut und mit schönem Sichtdachstuhl
- 5 Zimmer
- Heizung: Luftwärmepumpe (+ Fußbodenheizung)
- Elektrische Rollläden
- Geräumige Raumaufteilung, auch ideal für Familien mit Kindern
- Freier Blick auf Wiesen, Wälder und teilweise Berge
- Kein Keller, jedoch Abstellflächen, Heiz- und Technikraum sowie Hauswirtschaftsraum im EG vorhanden

Sonstiges

Angaben zum Energieausweis:
Art des Ausweises: Bedarfsausweis
Energiewert: 23,2 kWh/(m²*a)
Energieeffizienzklasse: A+
Energieträger: Luft-Wärmepumpe
Baujahr: 2018/19

ANSPRECHPARTNER
Philipp Beyer, Immobilienberater
Tel: 004986190949915
E-Mail: beyer@sic-chiemgau.de

Gerne berate ich Sie ausführlich!

Füllen Sie das untenstehende Formular aus und klicken Sie auf Senden. Wir setzen uns darauf hin baldmöglichst mit Ihnen in Verbindung.

ANSPRECHPARTNER
Philipp Beyer, Immobilienberater
Tel: 004986190949915
E-Mail: beyer@sic-chiemgau.de

Ich habe die Widerrufsbelehrung gelesen und akzeptiert. Kundeninformation zum Widerrufsrecht.

Ich habe die Datenschutzerklärung zur Kenntnis genommen. Ich stimme zu, dass meine Angaben und Daten zur Beantwortung meiner Anfrage elektronisch erhoben und gespeichert werden.

* Pflichtfelder